BIỆT THỰ TÂN CỔ ĐIỂN PHÁP

BIỆT THỰ TÂN CỔ ĐIỂN PHÁP

Diện tích: 12 x 20m
|
Loại: Biệt thự Tân Cổ Điển
|
Năm:
GIỚI THIỆU | INTRODUCTION

Diện tích đất: 12x 20m
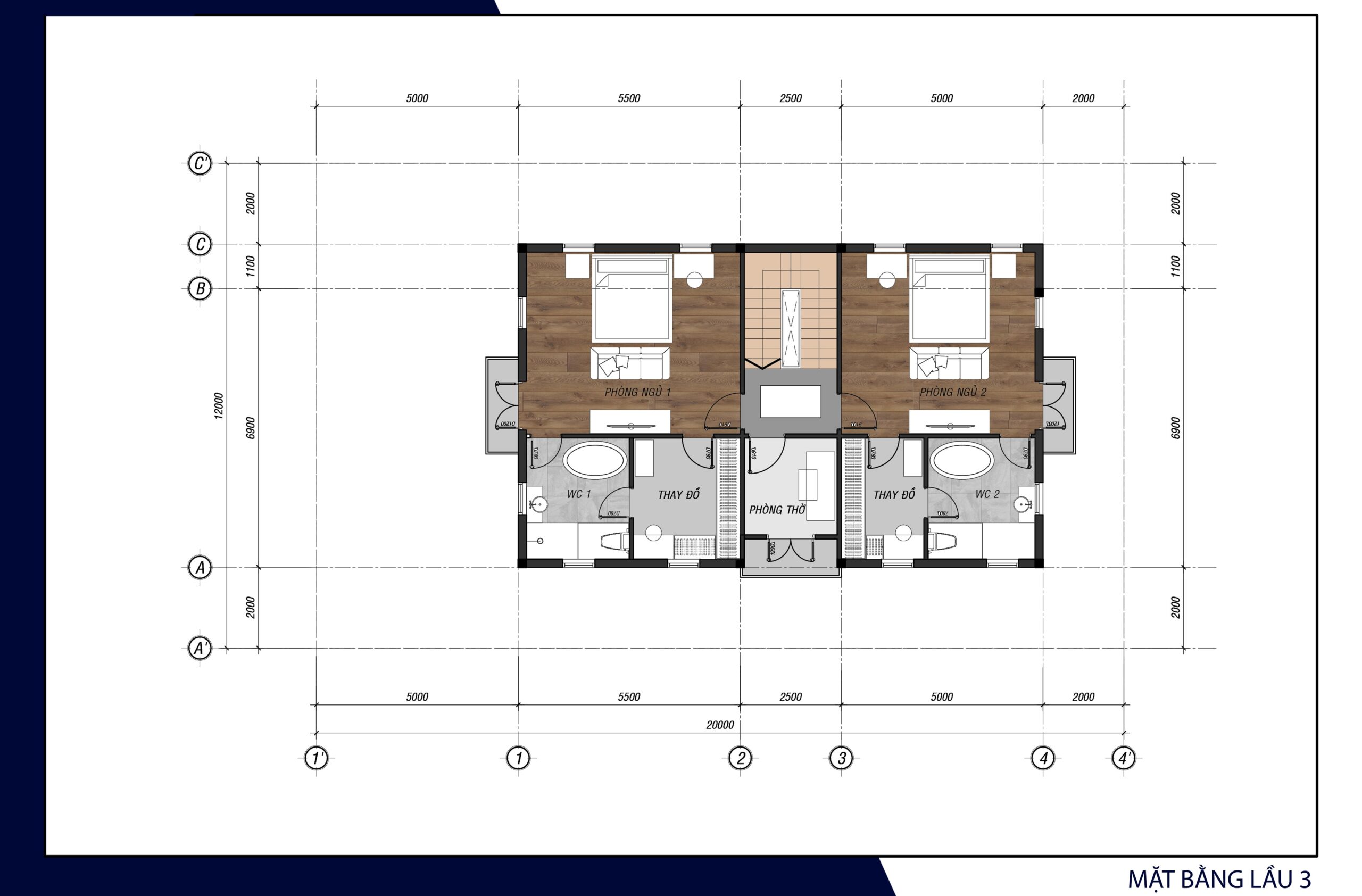
Diện tích xây dựng: 8 x 13m
Công năng: Tệt, 3 lầu, mái

THIẾT KẾ | DESIGN

BIỆT THỰ TÂN CỔ ĐIỂN – DẤU ẤN SANG TRỌNG GIỮA LÒNG ĐÔ THỊ

Công trình được thiết kế theo phong cách Tân Cổ Điển Châu Âu, mang vẻ đẹp thanh lịch, trang nhã nhưng vẫn toát lên khí chất bề thế và đẳng cấp. Tổng thể mặt tiền được tổ chức cân xứng, tỷ lệ chuẩn mực, thể hiện rõ tinh thần kiến trúc cổ điển được tiết chế để phù hợp với không gian đô thị hiện đại.

Gam màu trắng chủ đạo kết hợp hệ phào chỉ tinh xảo tạo nên diện mạo sang trọng, nhẹ nhàng và bền vững theo thời gian. Các chi tiết cửa sổ cao, hệ cửa chớp và ban công sắt mỹ thuật được thiết kế đồng bộ, vừa mang tính thẩm mỹ cao, vừa gợi nhắc nét đẹp kiến trúc Pháp cổ điển đầy tinh tế.

Mặt tiền công trình được nhấn mạnh bởi hệ cổng sắt nghệ thuật hoa văn cầu kỳ, kết hợp hàng rào và tường bao đồng bộ, tạo nên cảm giác uy nghi, riêng tư và an toàn. Thiết kế này không chỉ nâng tầm giá trị thẩm mỹ mà còn khẳng định vị thế của gia chủ ngay từ cái nhìn đầu tiên.

Không gian bên trong được tổ chức nhiều tầng, tối ưu công năng sử dụng, đồng thời đảm bảo sự thông thoáng và ánh sáng tự nhiên thông qua hệ cửa lớn và ban công phía trước. Các mảng xanh được bố trí khéo léo, góp phần cân bằng giữa kiến trúc và thiên nhiên, mang lại cảm giác dễ chịu trong sinh hoạt hằng ngày.

Dự án không đơn thuần là một ngôi nhà phố, mà là biểu tượng của phong cách sống tinh tế và chuẩn mực, nơi giá trị thẩm mỹ, công năng và dấu ấn cá nhân được hòa quyện, tạo nên một không gian sống xứng tầm dành cho những gia chủ yêu cầu cao về chất lượng và đẳng cấp.